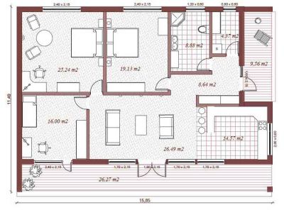
Maison contemporaine de 123.3 M² habitable plus 35.83 M² de terrasse
Site web
Visiter le site webDescription
Maison contemporaine de 123.3 M² habitable plus 35.83 M² de terrasse emprise aux sol 158.80 M²
Comprend matériaux pose su radier béton
1) ensemble de l’ossature classe 3 avec 15 mm d’isolation laine de roche ROCKWOOL de 150mm plus 50 mm sur les murs intérieur fourniture et pose
2) OSB 10mm
3) lisse basse classe 3 ou traitement antie thermites
4) angles métalliques de jonctions
5) pare vapeur fourniture et pose
6) une plaque de placoplâtre un deuxième placoplâtre croisé posé
7) extérieur pare-pluie fourniture et pose
8) tasseaux de 45 X 70 classe 3 support bardage
9) sapin du nord peint couleur RAL a définir posé , compris deuxième couche peinture
Murs intérieur compris posé
1) murs (cloisons ) intérieurs en ossature bois
2) isolation des cloisons intérieurs en laine de roche de 70 mm
3) recouvert de deux plaques de BA12 croisé l’ensemble posé
4) l’ensemble des jonction métalliques
Murs porteurs ou cloisons porteuse compris pose
1) murs porteur intérieur de la maison (cloisons ) en ossature de 45 X 150
2) isolation des cloisons porteuse en laine de roche de 150 mm
3) recouvert de deux plaques de BA12 croisé l’ensemble posé
4) l’ensemble des jonction métallique
fenêtres portes fenêtres , portes intérieurs compris avec pose
1) l’ensemble des fenêtres et portes fenêtres en PVC blanc
2) double vitrage 4 X 16 X 4 oscillo-battant ou coulissantes
3) pour les baies vitré coulissantes
4) possible en bois ou alu demandé nous un devis plus-value
5) porte intérieur MDF aux choix
Terrasse bois compris pose
1) pose des poutres solives 45 X 145 classe 3
2) angles métalliques de jonctions
3) pose des lames de terrasse avec vis inox épaisseur 27 mm traité
Toiture compris pose
1) pose d’un lattage vertical de 22 x 70 mm
2) pose d’un OSB de 18 mm caisson avec 200 mm d’isolation
3) plus 50 mm d’isolation total 250 mm
4) ossature de 45 x 70 mm
5) pose d’un OSB de 18 mm
6) deux couches croisé de bitumes de 4.5 mm épaisseur granulé garantie 45 ans
7) descente d’eau métalliques compris et posé
transport & autres compris
1) transport 2 camions semi-remorque
2) transport des ouvriers sur place incluse
3) hébergement des ouvriers inclus
4) location d’un manitou inclus
5) location d’échafaudage inclus
6) la garantie décennale
NON COMPRIS
1) ensemble des postes électricité , chauffage VMC
2) plomberie aussi que les appareillages
3) cheminée
4) carrelage dans les pièces d’eau
5) gros œuvre dalle béton terrassement
6) revêtement du sol
PRIX TTC pour l’ensemble 96 871.00 € TTC € soit moins de 787.56 € TTC le M² HABITABLE hors terrasse prix valable fin 2012
Eligible BBC 400€ 1er visite 550 € pour le diagnostique
livraisons , construction sur l'ensemble de la France
plusieurs models de maisons a votre disposition
sur vos plans ou sur les notre avec modification
option garage accolé
nous recherchons des revendeurs distributeurs sur la France
Comprend matériaux pose su radier béton
1) ensemble de l’ossature classe 3 avec 15 mm d’isolation laine de roche ROCKWOOL de 150mm plus 50 mm sur les murs intérieur fourniture et pose
2) OSB 10mm
3) lisse basse classe 3 ou traitement antie thermites
4) angles métalliques de jonctions
5) pare vapeur fourniture et pose
6) une plaque de placoplâtre un deuxième placoplâtre croisé posé
7) extérieur pare-pluie fourniture et pose
8) tasseaux de 45 X 70 classe 3 support bardage
9) sapin du nord peint couleur RAL a définir posé , compris deuxième couche peinture
Murs intérieur compris posé
1) murs (cloisons ) intérieurs en ossature bois
2) isolation des cloisons intérieurs en laine de roche de 70 mm
3) recouvert de deux plaques de BA12 croisé l’ensemble posé
4) l’ensemble des jonction métalliques
Murs porteurs ou cloisons porteuse compris pose
1) murs porteur intérieur de la maison (cloisons ) en ossature de 45 X 150
2) isolation des cloisons porteuse en laine de roche de 150 mm
3) recouvert de deux plaques de BA12 croisé l’ensemble posé
4) l’ensemble des jonction métallique
fenêtres portes fenêtres , portes intérieurs compris avec pose
1) l’ensemble des fenêtres et portes fenêtres en PVC blanc
2) double vitrage 4 X 16 X 4 oscillo-battant ou coulissantes
3) pour les baies vitré coulissantes
4) possible en bois ou alu demandé nous un devis plus-value
5) porte intérieur MDF aux choix
Terrasse bois compris pose
1) pose des poutres solives 45 X 145 classe 3
2) angles métalliques de jonctions
3) pose des lames de terrasse avec vis inox épaisseur 27 mm traité
Toiture compris pose
1) pose d’un lattage vertical de 22 x 70 mm
2) pose d’un OSB de 18 mm caisson avec 200 mm d’isolation
3) plus 50 mm d’isolation total 250 mm
4) ossature de 45 x 70 mm
5) pose d’un OSB de 18 mm
6) deux couches croisé de bitumes de 4.5 mm épaisseur granulé garantie 45 ans
7) descente d’eau métalliques compris et posé
transport & autres compris
1) transport 2 camions semi-remorque
2) transport des ouvriers sur place incluse
3) hébergement des ouvriers inclus
4) location d’un manitou inclus
5) location d’échafaudage inclus
6) la garantie décennale
NON COMPRIS
1) ensemble des postes électricité , chauffage VMC
2) plomberie aussi que les appareillages
3) cheminée
4) carrelage dans les pièces d’eau
5) gros œuvre dalle béton terrassement
6) revêtement du sol
PRIX TTC pour l’ensemble 96 871.00 € TTC € soit moins de 787.56 € TTC le M² HABITABLE hors terrasse prix valable fin 2012
Eligible BBC 400€ 1er visite 550 € pour le diagnostique
livraisons , construction sur l'ensemble de la France
plusieurs models de maisons a votre disposition
sur vos plans ou sur les notre avec modification
option garage accolé
nous recherchons des revendeurs distributeurs sur la France
Contact
Contacter le vendeur
Annonces similaires
[ AdSense Block - Anunț Safe ]